
|
Dětenice, východní část vsi na výřezu z katastrálního plánu z r. 1842. Kresba M. Režňák.
Encyklopedie českých tvrzí 1., ARGO 1997 |
půdorys zámku

|
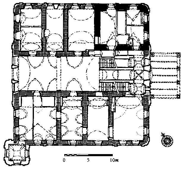
Dětenice, půdorys přízemí zámku podle plánu v archivu ZŠI s vyznačením zdiva tvrze podle L. Svobody.
Encyklopedie českých tvrzí 1., ARGO 1997 |
pohled na zámek

|
Dětenice, pohled na západní průčelí zámku. Foto L. Svoboda 1980.
Encyklopedie českých tvrzí 1., ARGO 1997 |
pohled na ves se zámkem

|
Dětenice, pohled na ves se zámkem a dvorem od západu podle fotografie z 1. čtvrtiny 20. století.
Encyklopedie českých tvrzí 1., ARGO 1997 |