
|
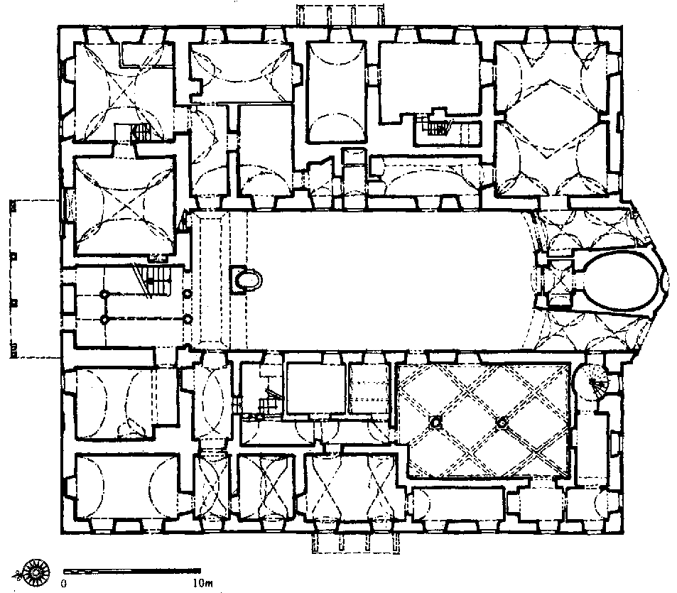
Lázně Bělohrad, půdorys přízemí zámku podle upraveného plánu v archivu SOU. Kresba L. Svoboda.
Encyklopedie českých tvrzí 2., ARGO 2000 |
letecký pohled

|
Lázně Bělohrad, letecký pohled na město se zámkem, vpravo nahoře Horní Nová Ves, před r. 1941.
Encyklopedie českých tvrzí 2., ARGO 2000 |
pohled na zámek

|
Lázně Bělohrad, pohled na jižní průčelí zámku. Stav r. 1979, foto L. Svoboda.
Encyklopedie českých tvrzí 2., ARGO 2000 |